
на комплекс работ по обследованию кровельного покрытия из мембраны Trokal-SGmA 1,5 мм.
Объект расположен по адресу: г. Москва.
Шифр проекта: 20200310.
Цель обследования: качественная оценка технического состояния кровли и кровельного покрытия; поиск дефектов гидроизоляционного слоя. При проведении обследования был применен метод неразрушающего контроля: визуально оптический, согласно ГОСТ 18353-79, контроль неразрушающий.

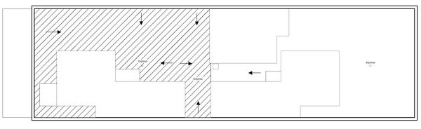
Комментарий: Штриховка – часть кровли, где проводилось обследование. Стрелки – указывают направление ската кровли.

Комментарий: Присутствие мусора, посторонних предметов, масляных пятен, хранение оборудования и.т.д.

Комментарий:

Комментарий:
а) дополнительный водоизоляционный ковер (рулонный или мастичный) герметичное примыкания к существующему (заложенному проектом) кровельному покрытию ОТСУТСТВУЕТ.
б) герметичное примыкания к стенам, частично ОТСУТСТВУЕТ.
в) не провар шва.

Комментарий:
Установленное дополнительное оборудование (дополнительный кирпичный короб для фановых труб) не входящее в проектную и исполнительную документацию.
а) при монтаже дополнительных вентиляционных и фановых труб, произведено пробитие отверстия сквозь крышу, не было выполнено герметичное примыкание гидроизоляции пвх мембраны к вытяжным трубам.
б) установлено дополнительное оборудование (кондиционер) на бетонную основу (опалубку), возможно пробитие или продавливание гидроизоляционного слоя мембраны.
в) расположение дополнительного короба вытяжных и фановых труб, не запланированной проектом. Ограничивает подход и обслуживание примыканий кровли к парапету.

Комментарий:
а) Сливная воронка вплотную прилегает к стене вентиляционного короба, что противоречит (СП 17.13330.2011 Кровли. Актуализированная редакция СНиП II-26-76).
Нарушение гидроизоляции в местах сопряжения водоприемных воронок внутреннего водостока с кровлей.
Ось воронки должна находиться на расстоянии не менее 600 мм. от парапета и других выступающих над кровлей частей зданий.
б) СП 17.13330.2011 Кровли. Актуализированная редакция СНиП II-26-76
в) Нарушение водоотведения в ливневую канализацию, после укладки дополнительного кровельного покрытия на высоту 170 мм.

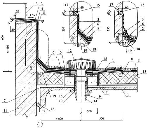
1 - железобетонная плита; 2 - основной водоизоляционный ковер из битумных и битумно-полимерных материалов; 3 - дополнительные слои ковра; 4 - костыль (полоса 4x40 мм); 5 - защитный фартук; 6 - бортик из цементно-песчаного раствора; 7 - опора из легкого бетона; 8 - местное понижение воронки; 9 - хомут; 10 - стекловата; 11 - стена; 12 - колпак водоприемной воронки; 13 - ограждение; 14 - патрубок с фланцем; 15 - герметизирующая мастика; 16 - уплотнитель; 17 - деревянный вкладыш; 18 - теплоизоляция; 19 - разделительный слой
Наличие полиуретанового герметика

Комментарий:

Комментарий:

а) - с герметизацией мастикой; 1 - сборная железобетонная панель; 2 - пароизоляция; 3 - теплоизоляция; 4 - выравнивающая стяжка; 5 - бортик из цементно-песчаного раствора; 6 - основной водоизоляционный ковер из битумных и битумно-полимерных материалов; 7 - дополнительные слои водоизоляционного ковра; 8 - защитный слой (крупнозернистая посыпка); 9 - хомут; 10 - рамка из стального уголка; 11 - зонт из оцинкованной стали; 12 - патрубок с фланцем; 13 - труба; 14 - герметизирующая мастика; 15 - стекловата; 16 - разделительный слой.

Комментарий:
а) примыкание к стене НЕ СООТВЕТСТВУЕТ
б) примыкание к парапету СООТВЕТСТВУЕТ

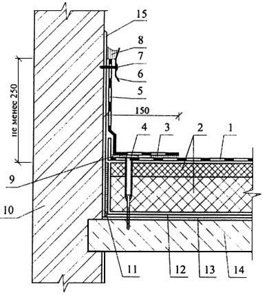
1 - основной слой водоизоляционного ковра из ПВХ- или ТПО-мембраны; 2 - теплоизоляция; 3 - сварной шов шириной 30 мм; 4 - телескопический крепеж; 5 - дополнительный слой водоизоляционного ковра из ПВХ- или ТПО-мембраны; 6 - металлическая прижимная рейка; 7 - крепежный элемент; 8 - герметик; 9 - дополнительный сварной шов шириной 20 мм; 10 - несущая стена; 11 - двухсторонняя самоклеющаяся лента для фиксации пароизоляции; 12 - пароизоляция; 13 - выравнивающая затирка из цементно-песчаного раствора; 14 - несущая железобетонная плита; 15 - штукатурный слой
Требования:

Комментарий:
Компания «Высотное-Обследование» имеет большой опыт работы на высоте.
Основными направлениями нашей работы является:
Руководство компании в этой области во многом связано с: